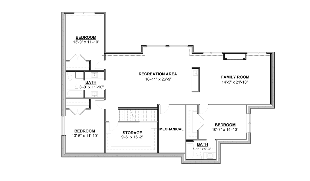
This contemporary home showcases a bold architectural form defined by asymmetrical rooflines and a dynamic mix of materials. The exterior combines smooth acrylic stucco with modern cultured stone and vertical steel siding in a warm wood tone, creating a sophisticated yet welcoming façade. The design blends modern prairie styling with timeless materials, offering a perfect balance of warmth, texture, and contemporary edge. Inside, the main floor offers an open-concept layout designed for modern living and effortless entertaining. The kitchen, dining area, and great room flow seamlessly together, highlighted by vaulted ceilings, a feature fireplace wall, and large windows that fill the space with light; the main floor also includes a private primary suite with a luxurious ensuite and walk-in closet. The lower level continues the focus on comfort and flexibility with a spacious family and recreation area complete with a wet bar and electric fireplace – ideal for casual entertaining. Two additional bedrooms, a full bath, and ample storage make this level perfect for guests or growing families. This show home exemplifies modern prairie design at its best — refined, functional, and thoughtfully crafted for the way families live today.
- Natural light
- Large windows
- Open floor plan
- Luxurious ensuite bath
- Large walk-in closet
- Generous rec room
- Electric fireplace
- Quartz countertops
- Vaulted ceilings
Details
SHOWHOME COMING SOON
Property Type: Single Family
Building Type: Detached House
Style: Bungalow
Size: 2221 Sq. Ft.
Parking: Attached Double Garage
Bedrooms: 4
Bathrooms: 3.5
Heat/Cool: Forced air (gas) + A/C
Water/Sewer: Municipal
Community: River Oaks North





