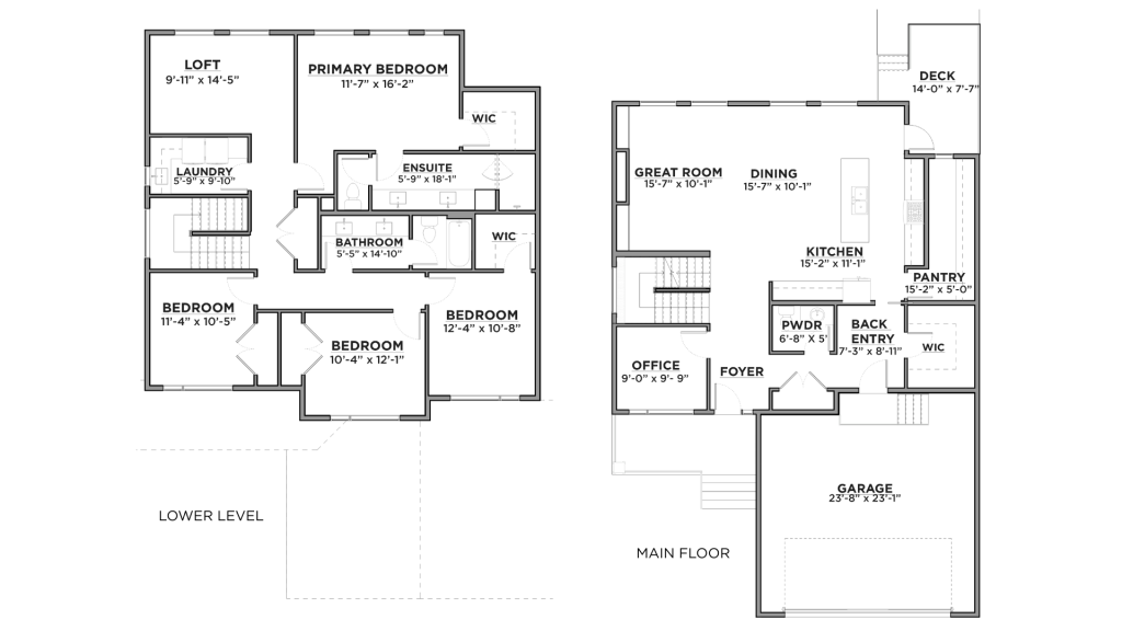
A modern two-storey home offering strong curb appeal and a thoughtfully designed interior. The main floor features a dedicated home office, along with a well-appointed kitchen showcasing maple cabinetry and a comfortable living area anchored by an electric fireplace with built-in cabinetry on either side. Upstairs, the second floor includes three bedrooms, a spacious loft area, and a private primary retreat complete with a tiled shower ensuite. A seamless blend of functionality and timeless design makes this home ideal for modern family living.
- Natural light
- Large windows
- Open floor plan
- Luxurious ensuite bath
- Large walk-in closet
- Quartz countertops
- Custom designed electric fireplace wall
- Loft
Details
Property Type: Single Family
Building Type: Detached House
Style: Two-Storey
Size: 2680 Sq. Ft.
Bedrooms: 4
Bathrooms: 2.5
Heat/Cool: Forced air (gas) + A/C
Water/Sewer: Municipal
Community: Bison Run



