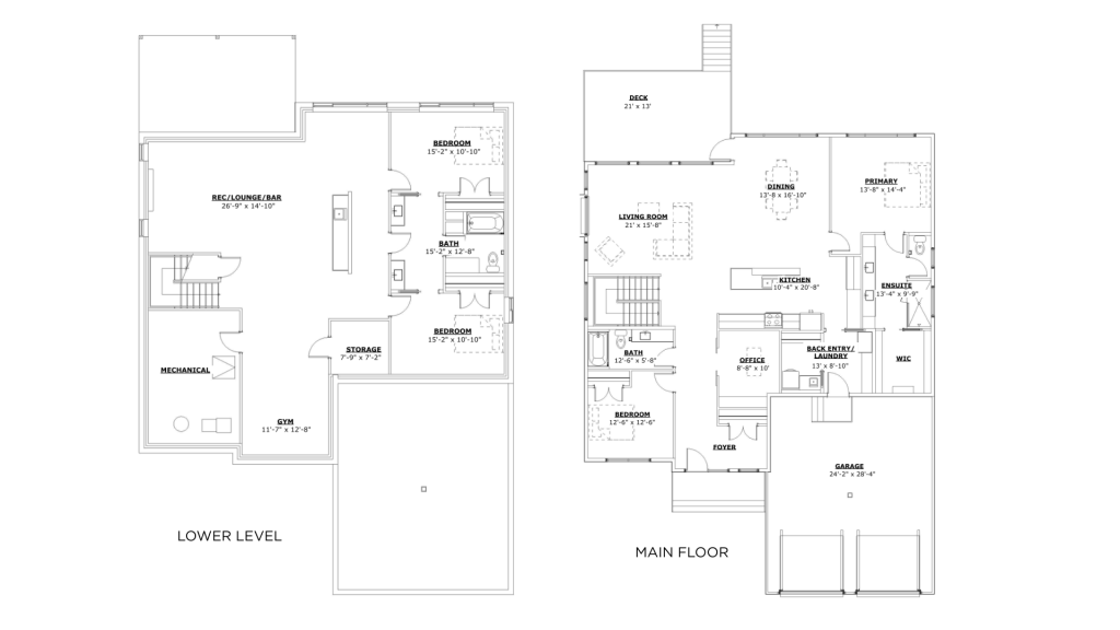
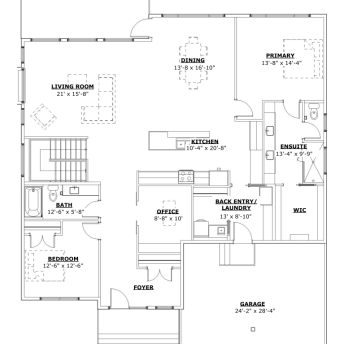
This 2083 Sq. Ft. bungalow features a mix of vertical siding, board and batten, and stone accents on the exterior, with large front windows. The home offers a spacious, open-concept layout with transitional finishes—combining classic and contemporary elements. Neutral tones, clean lines, and elegant fixtures create a warm, timeless interior, with features like porcelain countertops, maple and painted cabinetry, and stylish lighting throughout. The main floor includes two bedrooms, a dedicated office, and stylish living spaces, while the finished lower level offers a large recreation area and two additional bedrooms—perfect for guests or family.
- Large front windows
- Spacious open concept layout
- Porcelain countertops
- Maple and painted cabinetry
- Large recreation area
Details
SHOWHOME NOW OPEN
Property Type: Single Family
Building Type: Detached House
Style: Bungalow
Size: 2083 Sq. Ft.
Parking: Attached Double Garage
Bedrooms: 4
Bathrooms: 3
Basement: Full, finished
Heat/Cool: Forced air (gas) + A/C
Water/Sewer: Municipal
Community: Headingley





















