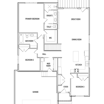
This 1,751 Sq. Ft. modern bungalow is located in the growing community of Bison Run in Waverley West. The main floor includes 3 bedrooms, 2 baths and open concept kitchen, dining, and living space; featuring an electric fireplace with wood accent wall. The completed walk-out basement includes an additional 2 bedrooms, 1 full bath and large rec area great for entertaining.
- Open concept
- Electric fireplace
- Wood accent wall
- Walk-out basement
- Large rec area
Details
SHOWHOME OPEN TUES - SAT & SUN 4PM - 7PM
Contact Jeremy Hiebert (Powell Property Group) | 204-977-2142
Property Type: Single Family
Building Type: Detached House
Style: Bungalow
Size: 1751 Sq. Ft.
Title: Freehold
Parking: Attached Double Garage
Bedrooms: 5
Bathrooms: 3
Basement: Full, finished
Heat/Cool: Forced air (gas) + A/C
Water/Sewer: Municipal
Community: Bison Run
Neighbourhood: Quiet, upscale residential























